afoi-vlachou.gr ...
Αρχική
Εταιρεία
Ακίνητα
Portfolio
Επικοινωνία
Αρχική
Εταιρεία
Ακίνητα
Portfolio
Επικοινωνία
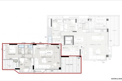
ΔΙΑΜΕΡΙΣΜΑ Δ2
Αρχική
/
Ακίνητο
ΔΙΑΜΕΡΙΣΜΑ Δ2
Κωδ. :
Δ Δ2
Τ.μ. :
91,36
Αρ. Δωματίων :
2
Όροφος :
4ος
Αρ. wc :
2
Περιγραφή
φωτογραφίες